多点卸料输送机系列
通 风 道
卸 粮 机
扒 谷 机
脱 粒 机
收 装 机
吸 粮 机
筛子系列
大型起粮机
粮面走道板
输送机系列
入仓/补仓机
人推式装粮机
粮情检测系统
SCS电子汽车衡
移动式输送抛粮机
移动式定量包装秤
螺旋式输送装包机
轴流式/离心式风机
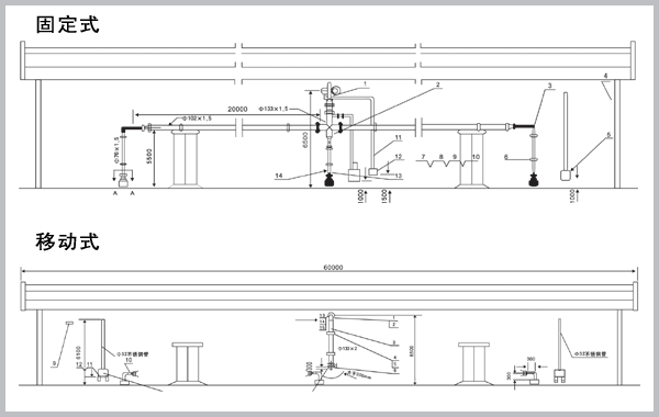
固定式环流熏蒸系统
3000型谷物保水调质系统
粮仓密封保温门、窗系列
固定式环流熏蒸系统
一、概述
环流熏蒸系统是根据粮食仓储理论,空气动力环流理论,化学防治理论,运用微电脑控制技术,严格按照国家GB/T17913-1999标准制造的一种系统功能强,安全性能好,杀虫效果理想,自动化程度高的高新技术仓储环保产品。
组成:
施药装置、固定式环流装置、检测装置(含气体取样装置)、微电脑时控装置。
性能:
◆
安全可靠:不锈钢结构、熏蒸专用风机、投药速度可控。
◆
高效快速:熏蒸时间可控、利用空气环流技术、PH3混合气体快速分布均匀、杀虫彻底。
◆
经济实惠:用药成本可节省70%以上、人工费可节省60%以上。
◆
操作方便:微电脑控制、每廒一套系纺、可同时熏蒸。
◆
特点:使用年限长,维护费用低,可一次性解决。
三、自然潮解式仓外环流熏蒸机
DS-Ⅱ型粮食专用环流熏蒸机,采用不锈钢结构比玻璃钢结构坚固耐用,不会老化。环流风机
采用防爆,防腐化,防泄露,三防专用风机。风叶采用全不锈钢材料制成。
◆
风 压:≤1000Pa
◆
风 量:≤1000m
3
/h
◆
控制方式:微电脑控制(手动/自动
)
◆
电机功率:0.55kw-0.75kw
◆
电机电压:220v/380v
◆
叶轮边缘线速度:≤40m/s
阜 城 县 喆 翔 机 械 厂
地址:河北省阜城县码头工业区 电话:0318-4861172 传真:0318-4861660
服务电话:400-009-1662 网址:www.zxssjx.com 邮箱:939755498@qq.com